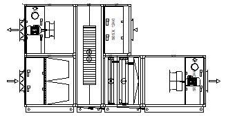
Air Handling Units

Air Handling Units are designed for various usage areas such as shopping malls, hospitals, plazas, factories, offices, schools, restaurants, textile areas, clean rooms and sports halls. Produced with 50 mm and 60 mm aluminum or 60 mm steel Eurovent profile options according to customer demand, these plants have modular structure and double wall panel structure (rock wool filled). EPDM gaskets are used for sealing and the outer panels are painted with electrostatic powder paint and can be produced as unpainted or stainless upon request.

Power plants for heating, cooling and ventilation can be produced in the 900-50,000 m³/h flow range; power plants for cooling in the 1800-80,000 m³/h flow range; and power plants for heating and ventilation in the 2,500-105,000 m³/h flow range. Heat recovery (rotor, plate, serpentine) or mixed air options are available for energy saving. Water, dx gas, steam or natural gas coils can be selected for heating and cooling.

According to the needs of the environment, filters, electric heaters, heating and cooling coils, humidifiers and silencer cells can be added to the devices. There are service covers for ease of service and maintenance and can be compatible with all brands of VRF outdoor units. ATEX certified production can also be realized.

Air Handling Units

General Features

  • X Areas of use: Shopping malls, hospitals, plazas, factories, offices, schools, restaurants, textile areas, clean rooms, gyms, etc.
  • X The profile structure of the air handling unit can be produced with 50 mm and 60 mm aluminum and 60 mm steel Eurovent profile options according to the customer's demand.
  • X Power plants for heating, cooling and ventilation are produced in a flow rate range of 900-50,000 m3/h.
  • X Power plants for cooling purposes are realized in the flow range of 1800-80,000 m3/h.
  • X Power plants for heating and ventilation are produced in the flow rate range of 2,500-105,000 m3/h.
  • X Modular production.
  • X Double skin panel structure (rock wool filled)
  • X EPDM gaskets are used for sealing.
  • X Exterior panels are painted with electrostatic powder paint. It can be produced as unpainted or stainless upon request.
  • X For energy saving, production can be realized with heat recovery (rotor, plate, serpentine) or mixed air.
  • X Coils for heating and cooling can be selected as water, dx gas, steam or natural gas.
  • X According to the demands of the environment, filters, electric heaters, heating and cooling coils, humidifiers, silencer cells can be added to the devices.
  • X There are service hatches for service and maintenance.
  • X It can work compatible with all brands of VRF outdoor units.
  • X ATEX certified production can be realized.

Blended Air Handling Unit

Single Fan Mixed Air Handling Unit

Single Fan Mixed Air Handling Unit

Double Fan Mixed Air Handling Unit

Double Fan Mixed Air Handling Unit

Heat Recovery Air Handling Unit

Plate Type Air Handling Unit

Plate Medical Air Handling Unit

Rotor Type Air Handling Unit

Rotor Medicine Air Handling Unit

Hygienic Plate Type Air Handling Unit

Hygienic Plate Type Air Handling Unit

Run Around Type Air Handling Unit

Run Around Type Air Handling Unit
Learn More from the Experts Search Now +90 506 131 26 66