Ideal Comfort Diffuser
This product is suitable for rooms with high ceilings such as sports complexes, atriums and factory production areas. With adjustable throw characteristics for summer and winter conditions, it offers customized solutions for heating and cooling needs. In heating, the movable inner casing is rotated to close the side vents of the outer casing and the hot air jet is directed through the vents in the base of the diffuser into the comfort zone. In cooling mode, the inner casing is rotated to close the bottom holes of the outer casing and the cold air is distributed through the side holes of the diffuser parallel to the horizontal axis in the neighborhood. Suitable for high air flow rates, this product is ideal for spaces with ceiling heights of 3.80 meters and above.
General Features
- X It can be used in places with high ceilings such as sports complexes, atriums, factory production areas.
- X Shooting characteristics can be adjusted for summer and winter conditions. In heating, the movable inner casing rotates and closes the side holes of the outer casing. In this way, the conditioned hot air jet easily descends into the comfort zone through the holes in the base of the diffuser.
- X In cooling air, the inner casing is rotated and closes the bottom holes of the outer casing. As a result of this process, conditioned cold air enters the neighborhood through the side holes of the diffuser at an angle parallel to the horizontal axis.
- X Suitable for high air flow rates.
- X Recommended for spaces with 3.80 meters and higher ceilings.
Material
- STANDARD: Galvanized sheet production
- OPTIONAL X
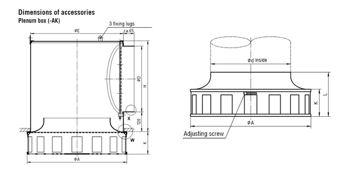
Case Types / Dimensioning
|
SIZE |
ØA |
Ød |
K |
L |
ØD |
ØE |
H |
|
Ø300 |
302 |
180 |
79 |
144 |
178 |
260 |
330 |
|
Ø400 |
402 |
250 |
98 |
175 |
248 |
360 |
400 |
|
Ø500 |
502 |
315 |
120 |
200 |
313 |
460 |
465 |
|
Ø600 |
602 |
400 |
136 |
221 |
398 |
560 |
550 |
|
Ø800 |
802 |
500 |
185 |
310 |
498 |
725 |
650 |
Surface Coating
- STANDARD: RAL 9010 or RAL 9016 Electrostatic Powder Coating
- OPTIONAL: Different RAL color codes and unpainted manufacturing
Election Table
If boxed, add 20-30 Pa to the pressure loss values|
SIZE |
300 |
400 |
500 |
600 |
800 |
|
|
Flow min |
m3/h |
170 |
280 |
605 |
830 |
1.680 |
|
Pa |
20 |
20 |
20 |
20 |
20 |
|
|
Flow max |
m3/h |
810 |
1.380 |
2.330 |
3.080 |
5.450 |
|
Pa |
150 |
150 |
150 |
150 |
150 |
|
|
Flow >40 Db |
m3/h |
450 |
640 |
1.075 |
1.440 |
2.590 |
|
Pa |
50 |
40 |
38 |
35 |
30 |
|
Winter Mode
Summer Mode
Accessories
- X Column Valve
- X Channel Connection Bracket

