Hepa Filter Box

The HEPA Filter Box is specially designed for use in pharmaceutical, chemical, and food industries, such as sterile environments, operating rooms, intensive care units, clean rooms, and water and beverage filling plants. It can be manufactured with side or top entry, low or high profile, depending on the project requirements, providing flexibility to meet different application needs. Hepa filter boxes are tested according to DIN 1946/4 standard and come with a 100% leak-proof guarantee. Equipped with differential pressure measurement ports to measure filter contamination, these boxes allow users to easily monitor the condition of the filters. Additionally, the internal structure of the box is highly resistant to disinfection processes, ensuring long-term and safe use.

Hepa Filter Box
Hepa Filter Box
Hepa Filter Box

General Features

  • X The HEPA Filter Box is designed for sterile environments, operating rooms, intensive care units, clean rooms, and water and beverage filling plants (pharmaceutical, chemical, and food industries).
  • X Custom manufacturing with side or top access, low-profile or high-profile designs.
  • X All HEPA filter boxes have been tested according to DIN 1946/4 and are offered for use with a 100% leak-proof guarantee.
  • X It has differential pressure measurement tips for measuring filter contamination.
  • X The inside of the box is resistant to disinfection processes.

Material

  • STANDARD:
  • X DKP Hair Manufacturing
  • OPTIONAL:
  • X 304 and 316 Grade Stainless Steel

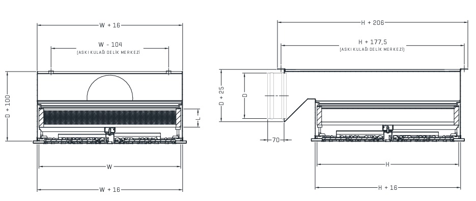
Case Types / Dimensioning

Channeled HEPA Filter Box (Type 1)

Hepa Filter Box
Hepa Filter Box

Flat Seating Surface HEPA Filter Box (Type 2)

Hepa Filter Box
Hepa Filter Box

FILTER DIMENSIONS
W mm x H mm x Filter Height mm – Flex ØD mm

305 x 305 x 78 – Ø125

305 x 305 x 149 – Ø125

457 x 457 x 78 – Ø160

457 x 457 x 149 – Ø160

535 x 535 x 78 – Ø180

535 x 535 x 149 – Ø180

575 x 575 x 78 – Ø200

575 x 575 x 149 – Ø200

610 x 610 x 78 – Ø200

610 x 610 x 149 – Ø200

Surface Coating

  • STANDARD
  • X RAL 9010 or RAL 9016 Electrostatic Powder Coating
  • OPTIONAL
  • X Different RAL color codes
  • X Unpainted manufacturing

Election Table

The filter intake velocity is 0.45 m/s and can exceed the maximum flow rate by +10%.

Filter Size

(mm x mm x mm)

Pile Height

(mm)

Max Flow Rate

(m3/h)

H13 Initial Pressure Loss

H13 Final Pressure Loss

H14 Initial Pressure Loss

H14 Final Pressure Loss

305 x 305 x 78

50

150

100 Pa

200 Pa

125 Pa

250 Pa

457 x 457 x 78

50

340

100 Pa

200 Pa

125 Pa

250 Pa

535 x 535 x 78

50

465

100 Pa

200 Pa

125 Pa

250 Pa

575 x 575 x 78

50

535

100 Pa

200 Pa

125 Pa

250 Pa

610 x 610 x 78

50

600

100 Pa

200 Pa

125 Pa

250 Pa

305 x 305 x 149

125

150

55 Pa

110 Pa

70 Pa

140 Pa

457 x 457 x 149

125

340

55 Pa

110 Pa

70 Pa

140 Pa

535 x 535 x 149

125

465

55 Pa

110 Pa

70 Pa

140 Pa

575 x 575 x 149

125

535

55 Pa

110 Pa

70 Pa

140 Pa

610 x 610 x 149

125

600

55 Pa

110 Pa

70 Pa

140 Pa

Accessories

  • X Column Valve
  • X Square Anemostat
  • X Perforated Vent
Learn More from the Experts Search Now +90 506 131 26 66