Smoke Damper (EN 1366-10)

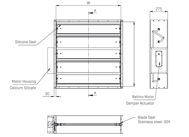
Smoke Damper (EN 1366-10) is designed for smoke control during a fire and, depending on the fire scenario, its blades open or close thanks to the smoke damper motor. This damper is used to ensure the extraction and control of smoke during a fire. In the event of a power failure, the blades remain in a fixed position; therefore, the insulation of the motor cables is important. E600 90 (hod – i ↔ o) S500 C300 AA This damper, which is in the single resistance class, is rated according to the EN 13501-4 standard as fire class E90, temperature class 600°C, and pressure class 500 Pa. With a guarantee of 10,000 open/close cycles for the damper blades, it can also be used in daily ventilation applications. Available in width and height dimensions ranging from 200×200 mm to 1000×1000 mm, this product has Class 2 blade airtightness according to the EN 1751 damper airtightness standard.

Smoke Damper (EN 1366-10)

General Features

  • X In the event of a fire, the smoke damper motor located on the smoke damper blades opens or closes according to the fire scenario. This enables smoke control.
  • X The Smoke Damper is used to evacuate and control smoke from the environment during a fire.
  • X If the electric current is interrupted, the blades remain in a fixed position, so the motor cables must be insulated.
  • X E600 90 (hod – i ↔ o) S500 C300 AA Single is in the strength class.
  • X Fire class is E90. (According to EN 13501-4)
  • X Temperature Class is 600°C. (According to EN 13501-4)
  • X Pressure Class is 500 Pa. (According to EN 13501-4)
  • X The damper blades are guaranteed to open and close 10,000 times. Thanks to this feature, they can also be used in daily ventilation applications.
  • X They are manufactured in sizes ranging from 200×200 mm to 1000×1000 mm in width and height.
  • X The blade tightness is Class 2 according to the EN 1751 damper tightness standard.

Material

  • STANDARD:
  • X Case: 1.50 mm Galvanized Sheet Metal
  • X Wing: 1.20 mm Galvanized Sheet Metal
  • X Wing Bushing: Brass Rod
  • X Wing Insulation Material: Rock Wool with a Density of 50kg/m3
  • X Wing Bumper: 1.00 mm 304 Grade Sheet Metal
  • X Hinge Mechanism: 4 mm 304 Grade Stainless Steel
  • X Gasket: Non-flammable Gasket EN-1366/10
  • X Motor Insulation: Calcium Silicate
  • OPTIONAL X

Case Types / Dimensioning

WIDTH W (mm)

200

300

400

500

600

700

800

900

1000

HEIGHT H (mm)

200

300

400

500

600

700

800

900

1000

Surface Coating

  • STANDARD: X Galvanized Case
  • OPTIONAL: X Insulated Outer Case

Tipper Weight Table

W / H

(Kg)

200

400

600

800

1000

200

12,3

15,6

18

 

 

300

14,4

18,3

21

23,2

 

400

16

20,4

23,5

25,9

28

500

17,5

22,2

25,5

28,2

30,5

600

18,7

23,8

27,4

30,2

32,7

700

19,8

25,2

29

32,1

34,7

800

 

26,6

30,6

33,8

36,5

900

 

27,8

32

35,3

38,1

1000

 

28,9

33,3

36,8

39,7

Number of Wings

Prismatic Fire Damper (EN 1366-2)

H

200 ≤ …400

400 ≤ …600

600 ≤ …800

800 ≤ …1000

=1000

Number of Wings

1

2

3

4

5

Learn More from the Experts Search Now +90 506 131 26 66