Circular CAV Device

The Circular CAV Device is used to control airflow in projects requiring comfort and hygiene, such as operating rooms, clean rooms, and specialized processes. Airflow can be easily adjusted using an Allen wrench on the device. This device can balance the pressure in the air duct between 20 Pa and 1000 Pa and, as it is a completely mechanical system, does not require any additional power input. Depending on pressure changes in the duct, when the CAV blade's torque decreases, the blade opens and the air flow rate increases; when the torque increases, the blade closes and the flow rate decreases. Thanks to the calibration spring, the CAV operates effectively at the calibrated flow rate with a deviation rate of 10-20%. It features a specially designed air viscous piston to reduce blade oscillations at high pressures. It is designed in accordance with DIN EN 1946/4 and VDI 6022 hygiene standards.

Circular CAV Device

General Features

  • X Used in projects with special requirements such as comfort and hygiene, such as operating rooms, clean rooms, and special processes, to control air flow.
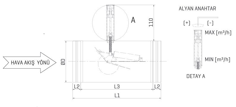
  • X The desired air flow rate can be easily adjusted using an Allen wrench on the device.
  • X It can balance the pressure in the air duct between 20 Pa and 1000 Pa.
  • X Since it is a completely mechanical system, it does not require any power input. Stabilization of the air flow rate is based on counteracting pressure changes in the system. When the air flow rate decreases due to pressure and pressure-related factors in the channel, the torque acting on the CAV flap decreases and the flap opens. As the blade opens, the air flow rate through the channel increases and returns to the calibration value.
  • X Conversely, when the air flow rate increases, the torque acting on the blade increases and the blade closes. When the blade closes, the air flow rate through the channel decreases and returns to the calibration value.
  • X The mechanism, precisely designed with a calibration spring according to the position of the blade, ensures that the CAV operates successfully with a deviation rate of 10-20% at the calibrated flow rate.
  • X It features a specially designed air viscous piston to minimize blade vibrations caused by increased turbulence at high pressures.
  • X Complies with DIN EN 1946/4 and VDI 6022 hygiene standards.

Material

  • STANDARD: X Galvanized steel casing and vane X Plastic adjustment tube for flow calibration. X Stainless steel calibration spring X EPDM rubber channel gaskets X Vane shaft AISI 304 stainless steel, shaft bushing PTFE plastic
  • OPTIONAL: X Stainless coated steel case and sash

Case Types / Dimensioning

Circular CAV Device

SIZE

ØD (mm)

L1 (mm)

L2 (inches)

L3 (mm)

V min (m3/h)

V max (m3/h)

Ø100

98

240

50

140

85

254

Ø125

123

240

50

140

132

397

Ø150

148

240

50

140

191

572

Ø160

158

250

50

150

217

651

Ø200

198

280

50

180

339

1017

Ø250

248

280

50

180

530

1590

Ø300

298

380

50

280

763

2289

Ø315

313

380

50

280

841

2524

Ø355

353

450

50

350

1068

3205

Ø400

398

450

50

350

1356

4069

Surface Coating

  • STANDARD: X Galvanized Case
  • OPTIONAL X

Assembly Detail

Minimum channel length after bends

Circular CAV Device

Te - Minimum channel length after reduction etc. channel equipment

Circular CAV Device

Accessories

  • STANDARD: X Electric Heater
  • OPTIONAL: X Circular Silencer
Learn More from the Experts Search Now +90 506 131 26 66